МегаГриНН

Курск, Карла Маркса ул., 68
Многофункциональный торгово-развлекательный, семейно-досуговый центр

О торговом комплексе

Один из крупнейших в Черноземье и ведущих торгово-развлекательных комплексов Курска и Курской области, в котором собраны товары и услуги на любой вкус и достаток. Ежедневно торговый центр посещают тысячи жителей и гостей Курска, различных возрастных категорий, а также с разным уровнем дохода.

Комплекс «МегаГРИНН» расположен в центральной части Курска, на пересечении основных транспортных маршрутов, соединяющих самые густонаселенные районы города. Неподалеку от «МегаГРИННа» располагается современный жилой массив, в зоне прямой доступности строится новый район «Северный» с общим числом жителей 50 тысяч человек. Таким образом, в 15-минутной доступности от комплекса проживает порядка 350 тысяч человек.

Комплекс "МегаГРИНН" расположен на одной из основных транспортных магистралей города - улице Карла Маркса с высокой интенсивностью автопотока: до 8000 автомобилей в час.

Основные характеристики

Общая площадь, кв.м. GBA

230 000+

Количество уровней

9

Количество магазинов

200+

2500

Парковка,
машиномест

130 000+

Арендные площади,
кв.м. GLA

40 000+

Развлекательные зоны
и фудкорт, кв.м.
Изображение
Большой выбор товаров:
более 200 магазинов
Изображение
Огромный фудкорт, ресторан, пивоварня, ночной клуб, караоке
Изображение
Парк развлечений, боулинг, каток, кинотеатр, концертный зал
Изображение
Отель, бизнес-центр, фитнес-клуб с бассейном, конференц-зал и др.

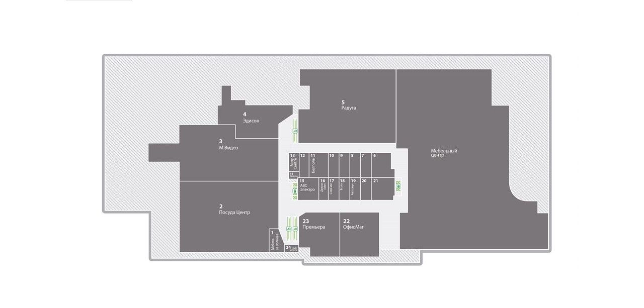
Схема этажей

  • Изображение
    -1 / Цокольный этаж 
  • Изображение
    1 этаж
  • Изображение
    1А этаж / 2 уровень
  • Изображение
    2 этаж / 3 уровень
  • Изображение
    3 этаж /  4 уровень
  • Изображение
    4 этаж / 5 уровень

    Якорные арендаторы

    В ТРЦ "МегаГриНН" представлен большой выбор торговых сетей, сервисных центров, развлечений:
    Изображение
    Изображение
    Изображение
    Изображение
    Изображение
    Изображение
    Изображение
    Изображение
    Изображение
    Yandex Metrica