КОНТИНЕНТ

Курск, пр-т Дружбы, 32А

ТОРГОВЫЙ ЦЕНТР ОТКРЫТ!

Успейте занять вакантные места для Вашего бизнеса прямо сейчас!
6500 м2
площадь комплекса
4
уровня
80 мест
вместимость парковки
Аренда помещений от 3 кв.м.
Ставка от 300 руб./кв.м.
Низкие эксплуатационные расходы
Собственная управляющая компания
Аптека и оптика, товары для детей и игрушки, одежда и обувь, товары для дома, сантехника и товары для ремонта, бытовая химия и парфюмерия, спортивный центр, кафе-ресторан и многое другое
Аренда торговых помещений от -1 до 3 этажа
Эскалаторы и лифты
Предчистовая отделка

ПЛАНИРОВКИ

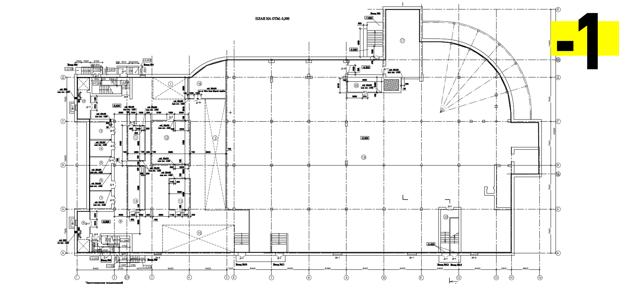
  • Изображение
    Цокольный (-1) этаж
  • Изображение
    1 этаж
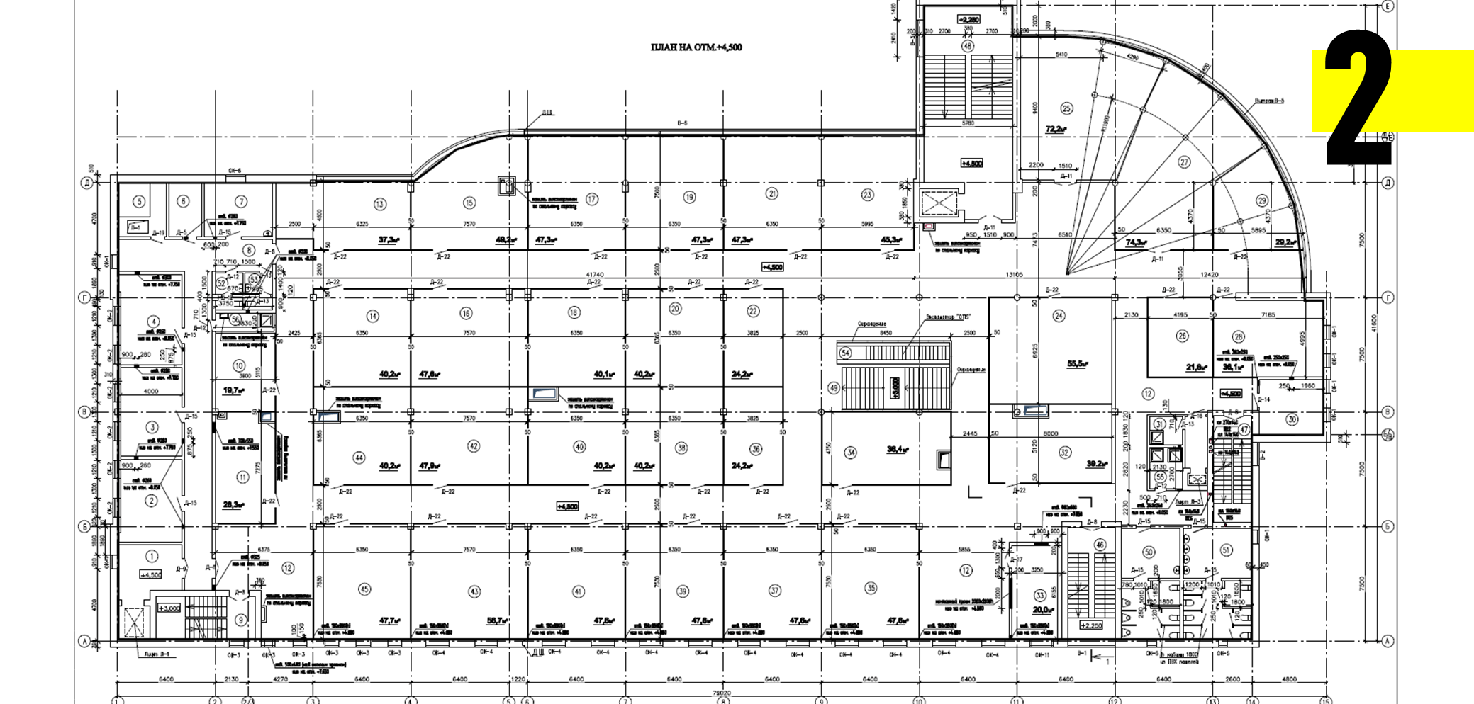
  • Изображение
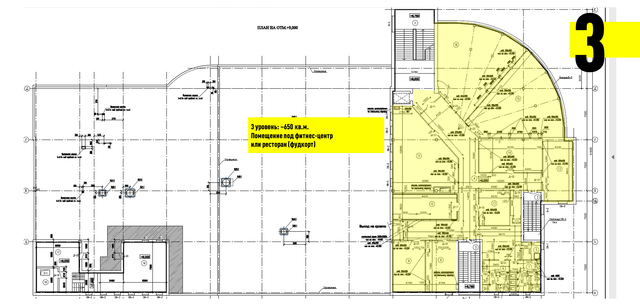
    2 этаж
  • Изображение
    3 этаж

    РАСПОЛОЖЕНИЕ

    6,4 Х 7,5 м
    шаг колонн
    4,3 м
    высота потолков
    4
    уровня
    • Изображение
      Эскалаторы на -1 и 2 этажи, лифт
    • Изображение
      Предчистовая отделка 
    • Изображение
      Открытая планировка: площадь и конфигурация, удобная для арендаторов

      +7 991 331 31 32
      +7 903 633 62 63

      Yandex Metrica